148 Regent CircleGunnison, CO 81230




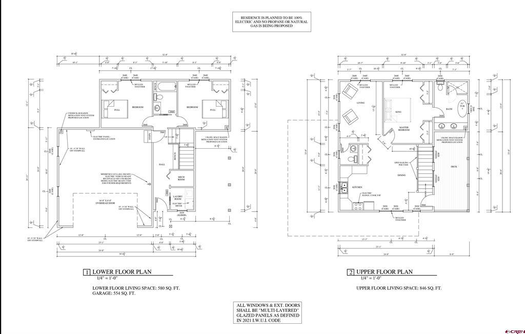
A rare opportunity to own a brand-new home in Gunnison, currently under construction and slated for completion in late July/early August. This 3-bedroom, 2.5-bath residence offers the chance for buyers to personalize key details—selecting appliances and certain finishes within a set budget—if they commit within a timeframe prior to completion. Located in the Thornton Meadows neighborhood, an area known for newer homes, open space, and a more rural feel, the property combines privacy with everyday convenience. Set on a quiet circle within a small, well-managed HOA, the home enjoys easy access to local amenities while maintaining a peaceful setting. Schools, shops, and services in downtown Gunnison are just minutes away, and Crested Butte is only about a 25-minute drive north. The home features a heated two-car garage, elevated ceilings on the second floor, luxury vinyl plank flooring, and a south-facing upper-level deck designed to capture abundant sunlight and sweeping views of the surrounding mountains and valley - including beautiful Gunnison sunrises and sunsets. A nearby neighborhood easement provides quick walking access to the RTA bus stop with service to Gunnison, the historic town of Crested Butte, and the ski resort. A recreation path just behind the property connects directly into Gunnison, making it easy to bike, jog, or walk into town during the warmer months. Within a mile, you’ll find the ever-popular Garlic Mike’s Restaurant & River Bar along with two public boat launches on the Gunnison River, offering convenient access to fishing and floating. Whether you’re seeking a full-time residence, mountain getaway, or investment in new construction, this home delivers comfort, flexibility, and a lifestyle defined by access to everything that makes the Gunnison Valley special.
| 3 weeks ago | Listing updated with changes from the MLS® | |
| 3 weeks ago | Status changed to Active Under Contract | |
| 4 weeks ago | Listing first seen on site |
The data relating to real estate for sale on this website comes in part from the Internet Data Exchange (IDX) program of Colorado Real Estate Network, Inc. (CREN), © Copyright 2026. All rights reserved. All data is deemed reliable but not guaranteed and should be independently verified. This database record is provided subject to “limited license” rights. Duplication or reproduction is prohibited.
FULL CREN Disclaimer - https://crenmls.com/full-cren-disclaimer-2/
Real Estate listings held by companies other than CREN contain that company’s name.
Fair Housing Disclaimer - https://crenmls.com/fair-housing-disclaimer/
Last checked: 2026-03-24 10:33 AM UTC


